( Works )
( Data )
家族構成
ご夫婦
築年数
28年
施工面積
122㎡
間取り
3LDK+水廻り+和室+SC+WIC+屋上
工期
3ヶ月
費用
1500万円
『外観は古いけれど、室内に入った時におしゃれなお家がすてきだな』と思っていたことがリノベーションをするきっかけとなったお施主さま。北欧と和のミックスなテイスト、心地よいヌックどこか懐かしくてホッとできる場所に生まれ変わりました。

日差しが温かい、読書スペース
既存の出窓を活かして、収納スペース+ベンチで心地よいヌック。

高く開放感のある天井
軽量鉄骨の天井×和風の壁を組み合わせたミックスな空間。
あらわしデザインをホワイトに塗装して、和の雰囲気と調和。
あらわしデザインをホワイトに塗装して、和の雰囲気と調和。


レトロな青いタイルが印象的。


お気に入りのダイニングで紡ぐ
ふたりの時間
レトロな青いタイルとリブパネルがアクセントなダイニングキッチン。
キッチンの背面のタイルも腰壁も、とってもかわいくてお気に入り。
キッチンの背面のタイルも腰壁も、とってもかわいくてお気に入り。


造作カウンターは
奥さまのお気に入り。
奥さまのお気に入り。



格子でゆるく仕切った和室。
お施主さまこだわりの襖収納はお気に入りの雑貨をすてきにディスプレイ。
お施主さまこだわりの襖収納はお気に入りの雑貨をすてきにディスプレイ。



DIYで仕上げた珪藻土の壁。



キャンプ用品を収納できるよう
広々としたSC。
広々としたSC。

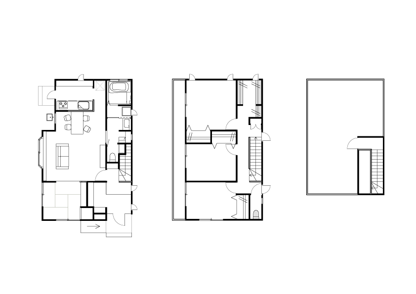
( Before )
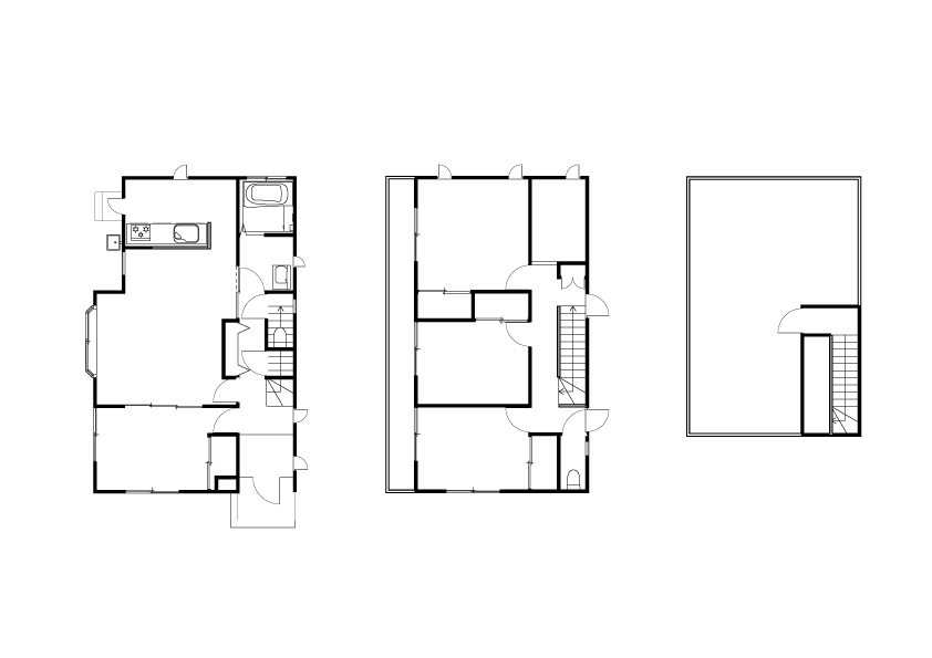
( After )
北欧と古民家のような
和テイストを融合
元々洋風な家で、和室もあってどことなく実家のような、落ち着いた雰囲気の物件。
古民家のような和のテイストを大切に、天井あらわしデザインにし、鉄骨を塗装して北欧テイストをプラス。

















