( Works )
( Data )
家族構成
ご夫婦
築年数
48年
施工面積
113㎡
間取り
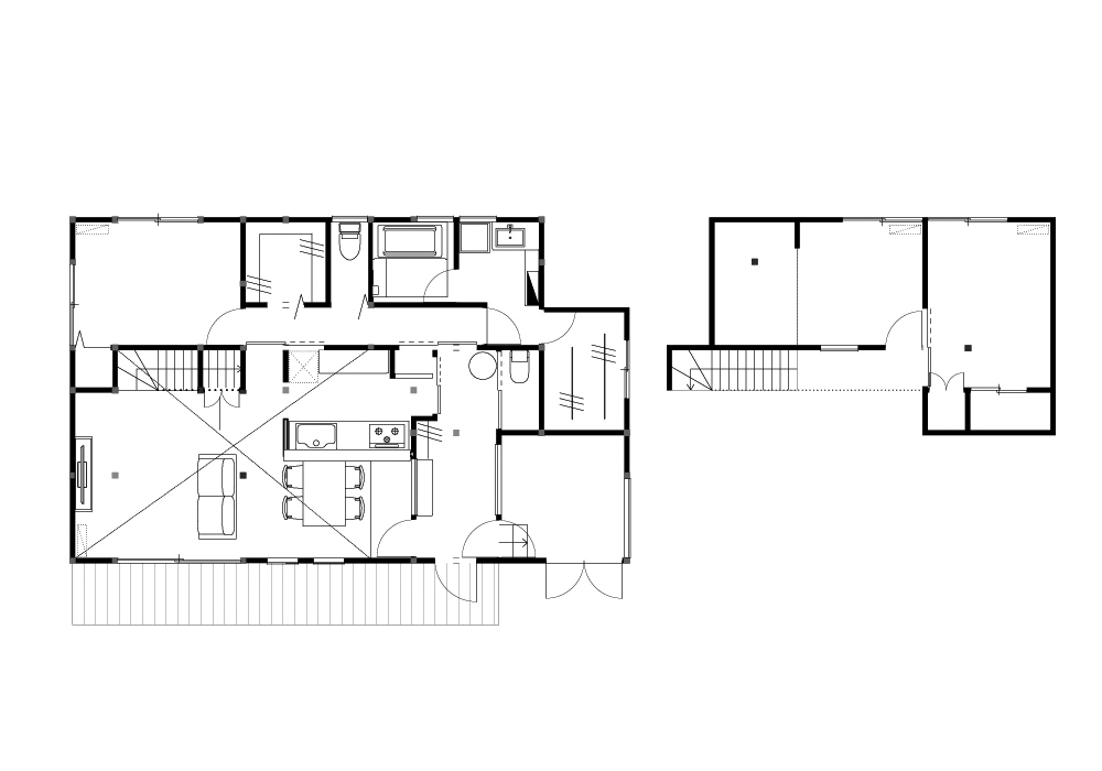
3LDK+土間+WIC+パントリー+ガレージ
工期
3か月
費用
2080万円
「アメリカンな家」「サーファーズハウス」で暮らしたいという想いを叶えるために、中古物件探しからはじまったSさまの家づくり。巡り合えた切妻屋根の平屋を思いどおりにリノベーションしました。
リビングは天井、南側の掃き出し窓、玄関側の室内窓など解放感を意識したデザインに。
南側はLDKとガレージで、広い庭やウッドデッキとのつながりを作りました。
サーファーズハウスが好きなご夫婦でしたので、テイストにもマッチし個性が出せるアカシアの床をご提案しました。
南側はLDKとガレージで、広い庭やウッドデッキとのつながりを作りました。
サーファーズハウスが好きなご夫婦でしたので、テイストにもマッチし個性が出せるアカシアの床をご提案しました。


間取りのポイントは、平屋の天井をなくした開放感のある勾配天井。



「土間にしたい」ということで、床を一段下げたキッチンは奥さまこだわりの空間。
設備はもちろん、動線や内装も奥さまの好みに合わせてご提案しました。
設備はもちろん、動線や内装も奥さまの好みに合わせてご提案しました。

キッチンの上を見上げるとカラフルなドア達が目を引きます。
イエローのドアはキッチンのペンダントライトとコーディネートされていて、カラフルな空間にまとまりを出しています。
イエローのドアはキッチンのペンダントライトとコーディネートされていて、カラフルな空間にまとまりを出しています。


インテリアのポイントに置かれた小物たちはどれも個性があり、一つ一つにSさまのこだわりが感じられます。
TV面の壁は板張りで、渋めに塗装しています。
カラフルなインテリア小物と落ち着いた木でバランスよく仕上がりました。
TV面の壁は板張りで、渋めに塗装しています。
カラフルなインテリア小物と落ち着いた木でバランスよく仕上がりました。





扉の向こうは土間トイレ
トイレが土間、廊下の二か所にあるのもSさまのこだわりポイント。
庭で作業をしたり、ご友人を呼んでBBQをした際に、外からでも気軽にアクセスできる土間トイレを設けました。
庭で作業をしたり、ご友人を呼んでBBQをした際に、外からでも気軽にアクセスできる土間トイレを設けました。

ドラム缶の洗面台
奥さまがネットで見つけたドラム缶の洗面台。空間を引き締めるインテリアに。

土間トイレ
土間のトイレはウォーリーを探せの世界観をイメージして。

雰囲気を変えて
室内のトイレはグッと雰囲気を変えて。


南側に配置したガレージはOSBで内装を仕上げてラフなデザインに。
ブラックの室内窓やシルバーのスイングドアと合わさると、ぐっと男前な印象になりました。
現在はオシャレな収納部屋としてご活用されていますが、将来的には作業ができるクラフトガレージにしたいとお話ししてくださいました。
ブラックの室内窓やシルバーのスイングドアと合わさると、ぐっと男前な印象になりました。
現在はオシャレな収納部屋としてご活用されていますが、将来的には作業ができるクラフトガレージにしたいとお話ししてくださいました。



ウッドデッキや玄関ドアの色もイメージ画像をもとに決めていきました。
アメリカンフェンスやSさまの大きな車も合わさると、最高に絵になるサーファーズハウスができたなと感動しました。
アメリカンフェンスやSさまの大きな車も合わさると、最高に絵になるサーファーズハウスができたなと感動しました。

( Before )
( After )
土間のある開放感のある間取り
もともと平屋でしたが、天井を無くして解放感のある吹き抜けリビングに。玄関からキッチンを思い切って土間にし、玄関からそのままトイレへ行ける動線もこだわりです。





















